Vinhomes Phước Vĩnh Tây

Giới thiệu

Vinhomes Phước Vĩnh Tây là dự án khu đô thị đẳng cấp do Tập đoàn Vingroup làm chủ đầu tư, tọa lạc tại xã Phước Vĩnh Tây, huyện Cần Giuộc, Long An - ngay cửa ngõ phía Nam TP.HCM. Tổng quan dự án Vinhomes Phước Vĩnh Tây. Với quy mô 1.089ha, dự án sau khi hoàn thiện sẽ cung ứng hơn 30.000 sản phẩm căn hộ chung cư, shophouse và biệt thự cao cấp ra thị trường. Được định hướng phát triển theo mô hình khu đô thị hiện đại, đồng bộ tiện ích và không gian sống xanh, dự án hứa hẹn trở thành biểu tượng mới của bất động sản Long An.

Tổng quan dự án Vinhomes Phước Vĩnh Tây

Siêu dự án Vinhomes Phước Vĩnh Tây tọa lạc tại huyện Cần Giuộc, tỉnh Long An đang dần hiện thực hóa tầm nhìn về một đại đô thị vệ tinh hiện đại và đáng sống. Với quy mô ấn tượng hơn 1.089 ha, dự án không chỉ sở hữu vị trí chiến lược, dễ dàng kết nối với TP. Hồ Chí Minh mà còn được định hướng trở thành một "thành phố trong thành phố" với hệ sinh thái tiện ích đẳng cấp.

Vinhomes Phước Vĩnh Tây được quy hoạch đồng bộ, tích hợp đa dạng các loại hình sản phẩm từ biệt thự, nhà phố đến căn hộ chung cư, đáp ứng mọi nhu cầu an cư và đầu tư. Dự án nổi bật với tiện ích nội khu chuẩn resort 5 sao, bao gồm trung tâm thương mại Vincom, hệ thống giáo dục Vinschool và y tế Vinmec, cùng các công viên cây xanh, hồ cảnh quan và khu thể thao đa năng. Tất cả nhằm mang đến một cuộc sống tiện nghi, trong lành và bền vững cho cư dân.

Tổng quan dự án Vinhomes Phước Vĩnh TâyTổng quan dự án Vinhomes Phước Vĩnh Tây

Tên dự án:

Vinhomes Phước Vĩnh Tây Cần Giuộc

Tên thương mại:

Vinhomes City Royal

Vị trí dự án:

Xã Phước Vĩnh Tây, Huyện Cần Giuộc, Tỉnh Long An

Chủ đầu tư:

Vingroup

Tổng diện tích quy hoạch:

1.089 ha.

Mật độ xây dựng:

25%.

Tổng vốn đầu tư

80.079 tỷ đồng

Đơn vị xây dựng:

Coteccons

Quy mô

  • 15.244 lô đất ở thấp tầng (7.050 căn nhà phố, 8194 căn biệt thự)
  • 13.449 căn hộ chung cư nhà ở xã hội
  • 2.370 căn nhà ở thấp tầng tái định cư

Loại hình phát triển:

  • Shophouse
  • Biệt thự liền kề
  • Nhà phố
  • Căn hộ chung cư

Thời gian 

triển khai:

Năm 2025

Dự kiến mở bán:

Cuối Năm 2025

Thông tin chủ đầu tư dự án Vinhomes Phước Vĩnh Tây

Chủ đầu tư dự án Vinhomes Phước Vĩnh Tây là tập đoàn Vingroup, thông qua liên danh giữa Vinhomes và VIG. Là tập đoàn bất động sản lớn mạnh hàng đầu tại Việt Nam, Vingroup đã có nhiều kinh nghiệm trong việc kiến tạo các siêu dự án quy mô khủng. Từ chất lượng sản phẩm bàn giao, tiến độ cho đến mức giá đều rất tốt. Cùng điểm qua một số dự án nổi bật tập đoàn đã thực hiện được khách hàng yêu thích:

  • Vinhomes Grand Park
  • Vinhomes Star City
  • Vinhomes Marina
  • Vinhomes Riverside
  • Vinhomes Ocean Park
  • Vinhomes Smart City

Vingroup là chủ đầu tư dự ánVingroup là chủ đầu tư dự án

Vị trí dự án

Vị trí dự án Vinhomes Phước Vĩnh Tây và hạ tầng xung quanh

Chỉ cách TP Hồ Chí Minh khoảng 25km, Vinhomes Phước Vĩnh Tây là sự lựa chọn hàng đầu của nhiều khách hàng khi muốn tìm kiếm một nơi an cư có giao thông thuận tiện, kết nối nhanh chóng với khu vực trung tâm. Đảm bảo cho mọi nhu cầu làm việc, học tập, vui chơi giải trí cho các cư dân tương lai.

Vị trí dự án Vinhomes Phước Vĩnh Tây

Vị trí dự án Vinhomes Phước Vĩnh Tây được xây dựng tại xã Phước Vĩnh Tây, huyện Cần Giuộc, tỉnh Long An. Bao quanh dự án là sông Cần Giuộc và sông Rạch Ván cho nguồn không khí trong lành, mát mẻ đúng chuẩn xu hướng sống mới được nhiều người hướng đến. Các hướng tiếp giáp:

  • Phía Bắc: Giáp sông Rạch Ván, xã Phước Lại
  • Phía Nam: Giáp khu dân cư Phước Vĩnh Tây, một phần xã Long Phụng và xã Đông Thành
  • Phía Đông: Giáp khu dân cư Phước Vĩnh Tây, một phần xã Phước Vĩnh Đông
  • Phía Tây: Giáp sông Cần Giuộc.

Vị trí xây dựng dự án Vinhomes Phước Vĩnh Tây

Vị trí xây dựng dự án Vinhomes Phước Vĩnh Tây

Không chỉ sở hữu vị trí đẹp mà dự án Vinhomes Phước Vĩnh Tây còn nằm ở khu vực đã phát triển lâu đời với đầy đủ cơ sở vật chất phục vụ cuộc sống. Chỉ vài bước di chuyển  bạn có thể nhanh chóng tiếp cận đến những tiện ích ngoại khu chất lượng như:

  • Giáo dục: Trường mầm non Hướng Dương, mầm non Hoa Sen, trường TH Trần Thị Bưởi, trường THCS Nguyễn Văn Trỗi, THCS Cần Giuộc, THPT Cần Giuộc…
  • Y tế: Bệnh viện đa khoa Cần Giuộc, trạm y tế Phước Vĩnh Tây, bệnh viện quốc tế FV.
  • Dịch vụ thương mại: Chợ Cần Giuộc, chợ Long Thượng, Coopmart Cần Giuộc, Bách Hoá Xanh.
  • Dịch vụ giải trí: Trung tâm văn hoá – thể thao Cần Giuộc, sân bóng đá mini, chùa Tôn Thạnh, Kids House, Sun kids…

Hạ tầng xung quanh Vinhomes Phước Vĩnh Tây

Tỉnh Long An nằm ở khu vực phía Nam TP Hồ Chí Minh với hạ tầng giao thông thuận tiện. Cư dân có thể thông qua những tuyến đường dưới đây để đi vào trung tâm thành phố hay đến các tỉnh thành lân cận trong cùng khu vực:

  • Đường Vành đai 4 TP.HCM (tỉnh lộ 830E): Tuyến đường này chạy qua dự án, tạo điều kiện thuận lợi cho việc di chuyển đến các tỉnh trong vùng kinh tế trọng điểm phía Nam.
  • Cao tốc Bến Lức - Long Thành: Kết nối nhanh chóng đến các tỉnh miền Tây và khu vực phía Đông TP.HCM.
  • Đường tỉnh 826C: Giúp kết nối nội khu và các khu vực lân cận.

Vinhomes Phước Vĩnh Tây được hưởng lợi từ hạ tầng giao thông hoàn thiện

Vinhomes Phước Vĩnh Tây được hưởng lợi từ hạ tầng giao thông hoàn thiện

Tiện ích dự án

Những tiện ích nổi bật của dự án Vinhomes Phước Vĩnh Tây

Hệ sinh thái khép kín “All in one” là mục tiêu hướng đến của mọi dự án bất động sản do tập đoàn Vingroup làm chủ đầu tư. Với Vinhomes Phước Vĩnh Tây cũng vậy, tại đây có đa dạng các tiện ích chất lượng phục vụ cho cả nhu cầu sinh hoạt, vui chơi giải trí, học tập, rèn luyện sức khỏe. Kết hợp với nhiều mảng xanh trong lành kiến tạo nên một cuộc sống thư thái, bình yên và chất lượng.

  • Bệnh viện quốc tế Vinmec
  • Trường học liên cấp Vinschool
  • Trung tâm thương mại mua sắm, các khu nhà hàng, cà phê.
  • Khu vui chơi trẻ em trong nhà và ngoài trời phát triển toàn diện về thể chất và trí tuệ.
  • Hệ thống an ninh đảm bảo an toàn tuyệt đối với thẻ từ ra vào khu dân cư, camera, bảo vệ trực 24/7.
  • Phòng gym, yoga nhiều thiết bị hiện đại phục vụ nhu cầu nâng cao sức khoẻ.
  • Bể bơi chân mây có khu bể bơi nhỏ riêng cho cư dân nhí, cùng với đó là ghế tắm nắng, khu massage thư giãn.
  • Công viên chủ đề với nhiều loại cây hoa khoe sắc tạo nguồn không khí trong lành.
  • Vườn thiền, khu thể thao đa năng ngoài trời…

Đa dạng tiện ích được kiến tạo tại Vinhomes Phước Vĩnh Tây

Đa dạng tiện ích được kiến tạo tại Vinhomes Phước Vĩnh Tây

Không gian cây xanh dưới các tòa chung cư

Không gian cây xanh dưới các tòa chung cư

Mặt bằng dự án

Mặt bằng tổng thể dự án Vinhomes Phước Vĩnh Tây

Tổng diện tích xây dựng Vinhomes Phước Vĩnh Tây là 1.089ha với mật độ xây dựng rất thấp, chỉ 25%. Dự án được chia thành 4 phân khu riêng biệt với những chức năng và nhiệm vụ riêng, trong đó phân khu A sẽ được khởi công xây dựng trước vào cuối tháng 8 này.

Mặt bằng quy hoạch tổng thể dự án Vinhomes Phước Vĩnh Tây

Mặt bằng quy hoạch tổng thể dự án Vinhomes Phước Vĩnh Tây

Vị trí các phân khu bên trong dự án

Vị trí các phân khu bên trong dự án

Phân khu A

Giới hạn phân khu A dựa trên các tuyến đường: Tỉnh lộ 830E (Vành đai 4), đường tỉnh 826C, đường tỉnh 826D đến ranh giới phía Nam khu đô thị mới. Tại đây sẽ được xây dựng các công trình trung tâm thương mại dịch vụ kết hợp quảng trường và khu nhà ở. Cụ thể như sau:

  • Diện tích khoảng: 505,71 ha, chiếm khoảng 46,41% đất tự nhiên của khu đô thị.
  • Dân số khoảng: 50.300 người.
  • Đất đơn vị ở khoảng: 346,09 ha.
  • Đất công trình công cộng dịch vụ khoảng: 15,22 ha.
  • Đất cây xanh khoảng: 18,96 ha.

Phân khu B

Phân khu B được phát triển dọc con sông Cần Giuộc, giới hạn bởi các tuyến đường: Tỉnh lộ 830E (Vành đai 4), đường tỉnh 826C và các con sông: sông Cần Giuộc, sông Rạch Cát. Tại đây sẽ xây dựng nhà ở mật độ thấp và khu sinh thái xanh.

  • Diện tích khoảng: 304,88 ha, chiếm khoảng 27,98% đất tự nhiên của khu đô thị.
  • Dân số khoảng: 27.900 người.
  • Đất đơn vị ở khoảng: 190,86 ha.
  • Đất công trình công cộng – dịch vụ khoảng: 5,87 ha.
  • Đất cây xanh khoảng: 24,59 ha.

Phân khu C

Phân khu C dự án Vinhomes Phước Vĩnh Tây được giới hạn bởi các tuyến đường: Tỉnh lộ 830E (Vành đai 4), đường tỉnh 826C, sông Rạch Ván ở phía Bắc đến ranh giới phía Đông khu đô thị mới. Khu đô thị mật độ thấp là hướng phát triển của phân khu này sau khi hoàn thiện.

  • Diện tích khoảng: 73,75 ha, chiếm khoảng 6,77% đất tự nhiên của khu đô thị.
  • Dân số khoảng: 6.700 người.
  • Đất đơn vị ở khoảng: 44,6 ha.
  • Đất công trình công cộng – dịch vụ khoảng: 3,19 ha.
  • Đất cây xanh khoảng: 14,35 ha.

Phân khu D

Ranh giới phân khu D được phân định bởi: sông Cần Giuộc, sông Rạch Ván, Tỉnh lộ 830E (Vành đai 4), đường tỉnh 826C. Tại đây sẽ kiến tạo nên khu đô thị ven sông hiện đại, đẳng cấp với các loại hình nhà ở thấp tầng cùng hệ sinh thái xanh.

  • Diện tích khoảng: 137,57 ha, chiếm khoảng 12,63% đất tự nhiên của khu đô thị.
  • Dân số khoảng: 14.100 người.
  • Đất đơn vị ở khoảng: 97,36 ha.
  • Đất công trình công cộng – dịch vụ khoảng: 2,19 ha.
  • Đất cây xanh khoảng: 4,88 ha.

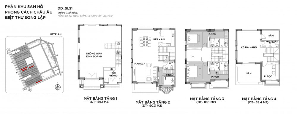
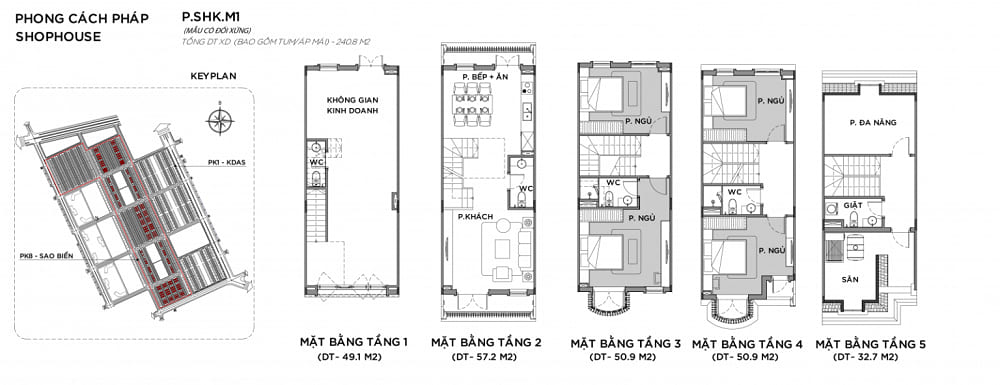
Thiết kế các loại hình căn hộ dự án Vinhomes Phước Vĩnh Tây

Sau khi hoàn thiện, dự án Vinhomes Phước Vĩnh Tây sẽ cung cấp ra thị trường hơn 30.000 sản phẩm chung cư, shophouse và biệt thự cao cấp. Đáp ứng cả nhu cầu an cư lâu dài, cho thuê, kinh doanh hoặc đầu tư sinh lời bền vững. Mỗi loại hình sẽ được thiết kế với diện tích khác nhau đảm bảo đem đến không gian sống chất lượng nhất.

  • Shophouse: Chiều cao 5 tầng với diện tích từ 120m2, tầng 1 được bố trí làm không gian kinh doanh với diện tích rộng, tầng 2 là khu vực phòng khách và bếp ăn có thể cải tạo làm nơi kinh doanh nếu cần. 3 tầng phía trên bố trí các phòng ngủ và sân phơi.
  • Biệt thự: Chiều cao 4 tầng với diện tích từ 270 - 343m2, có gara để ô riêng cho các gia đình. Các phòng chức năng được bố trí hợp lý, có khu sân vườn và ban công rộng tạo cảnh quan đẹp mắt.
  • Căn hộ chung cư: Thiết kế 1 – 3 phòng ngủ đa dạng diện tích, ban công rộng phía trước phòng khách giúp đón nắng và ánh sáng tự nhiên tiết kiệm điện năng. Mỗi phòng chức năng bố trí hợp lý, tạo cảm giác rộng rãi và thoáng đãng cho cư dân sử dụng.






Bảng giá & PTTT Căn hộ

Giá bán các sản phẩm căn hộ Vinhomes Phước Vĩnh Tây

Giá bán dự án Vinhomes Phước Vĩnh Tây phụ thuộc vào nhiều yếu tố như: loại hình sản phẩm, diện tích, vị trí, chính sách ưu đãi từ chủ đầu tư… Theo đó giá rumor mới nhất hiện ở mức 38 – 55 triệu đồng/m2 chưa bao gồm VAT và phí bảo trì. Quý khách có thể tham khảo bảng giá dự kiến ở dưới để cân nhắc đầu tư cho phù hợp.

LOẠI HÌNH SẢN PHẨM

DIỆN TÍCH

GIÁ BÁN

Căn Hộ Studio

32 – 40m2

Từ 1.9 tỷ đồng/căn

Căn Hộ 1 Phòng Ngủ

43 – 47m2

Từ 2 – 2.3 tỷ đồng/căn

Căn Hộ 2 Phòng Ngủ

59 – 70m2

Từ 3 – 3.4 tỷ đồng/căn

Căn Hộ 3 Phòng Ngủ

84 – 80m2

Từ 5.5 – 7 tỷ đồng/căn

Biệt thự

270 – 343m2

Từ 20 tỷ đồng/căn

shophouse

120m2

Từ 12 tỷ đồng/căn

Tiến độ xây dựng dự án Vinhomes Phước Vĩnh Tây

Ngày 19/8/2025 vừa qua, dự án Vinhomes Phước Vĩnh Tây đã chính thức được khởi công xây dựng với sự tham gia của đại diện UBND tỉnh Long An (nay là tỉnh Tây Ninh), đại diện chủ đầu tư cùng đông đảo quan khách quan tâm. Tiến độ theo kế hoạch của dự án như sau:

  • Hoàn thành giải phóng mặt bằng: Đến cuối tháng 4 năm 2025, hơn 360 ha đất đã được bồi thường và hỗ trợ tái định cư. Khu tái định cư rộng 65 ha đang được hoàn thiện.
  • Hiện trạng: Hoàn tất giải phóng mặt bằng, bắt đầu lắp hàng rào bao quanh dự án và đưa máy móc đến công trường.
  • Thời gian hoàn thành: Dự kiến hoàn thành và đưa vào sử dụng toàn bộ vào cuối năm 2030.

Lễ khởi công dự án Vinhomes Phước Vĩnh Tây

Lễ khởi công dự án Vinhomes Phước Vĩnh Tây

Tiến độ xây dựng thực tế dự án

Tiến độ xây dựng thực tế dự án

Công trình bên trong đang được đẩy mạnh

Công trình bên trong đang được đẩy mạnh

Đánh giá tiềm năng dự án Vinhomes Phước Vĩnh Tây

Vinhomes Phước Vĩnh Tây là dự án đón đầu làn sóng bất động sản mới tại khu vực phía Nam TP Hồ Chí Minh. Đảm bảo cho khách hàng và các nhà đầu tư về tiềm năng tăng giá bền vững bởi những yếu tố sau:

  • Vị trí chiến lược: Dự án tọa lạc tại Cần Giuộc, Long An - cửa ngõ phía Nam của TP. Hồ Chí Minh. Vị trí này có lợi thế lớn về giao thông, kết nối thuận tiện với trung tâm thành phố và các tỉnh miền Tây. Hơn nữa còn nằm gần các tuyến đường huyết mạch như Tỉnh lộ 830E (Vành đai 4), Đường tỉnh 826C và Cao tốc Bến Lức – Long Thành, tạo điều kiện thuận lợi cho việc di chuyển.
  • Tiện ích "all-in-one" đẳng cấp: Vinhomes Phước Vĩnh Tây được quy hoạch theo mô hình "thành phố thu nhỏ" với hệ thống tiện ích nội khu đa dạng, bao gồm trung tâm thương mại Vincom, trường học Vinschool, bệnh viện Vinmec, khu vui chơi, công viên cây xanh... Điều này đáp ứng mọi nhu cầu sống, học tập, làm việc và giải trí của cư dân ngay tại chỗ, nâng cao chất lượng cuộc sống.
  • Tiềm năng phát triển kinh tế khu vực: Dự án nằm gần các khu công nghiệp lớn như KCN Long Hậu, KCN Hiệp Phước, thu hút một lượng lớn chuyên gia và người lao động, tạo ra nhu cầu lớn về nhà ở. Đảm bảo nguồn khách hàng tiềm năng cho dự án và góp phần thúc đẩy giá trị bất động sản trong tương lai.
  • Quy mô và chủ đầu tư uy tín: Với quy mô hơn 1.089 ha, đây là một trong những đại đô thị lớn nhất tại miền Nam. Chủ đầu tư là Tập đoàn Vingroup, một trong những thương hiệu bất động sản hàng đầu Việt Nam, đảm bảo về chất lượng xây dựng, tiến độ và pháp lý của dự án.

Vinhomes Phước Vĩnh Tây mang đến cho khách hàng chốn an cư lý tưởng với không gian sống xanh – sạch – hiện đại cùng cơ hội đầu tư bền vững không thể tuyệt vời hơn. Với uy tín của Tập đoàn Vingroup cùng hàng loạt tiện ích nội ngoại khu đẳng cấp, dự án hứa hẹn trở thành biểu tượng mới của bất động sản Long An. Đây chính là thời điểm vàng để khách hàng và nhà đầu tư cân nhắc sở hữu cho mình một sản phẩm chất lượng.